územní studie lokality „V Ráji” v Dolní Čermné

model 1:500

koncepční skica – krajina
výkresy územní studie
autorský tým:
Jan Světlík, Vojtěch Šedý, Filip Šefl, Patrik Zamazal (Molo architekti)
územní studie:
10/2019
klient:
Městys Dolní Čermná
Máme-li vyzdvihnout, co na prostředí severního okraje Dolní Čermné považujeme za nejkrásnější z hlediska utváření místa a krajiny, byl by to bezpochyby poetický rytmus místa - střídání luk, polí, stromořadí, remízků i samostatných stromů a usedlostí zpravidla staveb v přímé kompozici se vzrostlými stromy, to vše posíleno rámcem hřebenů okolních kopců. Rozptýlená zástavba, hospodářská krajina, místo osídlené, ale přitom pořád krásné - ne “vytěžené”. Kompozice - ne koberec zástavby. Rádi bychom přispěli k tomu, aby právě lokalita “V Ráji“ tuto poezii místa posílila.
Naším cílem při zpracování této územní studie je nastavit určitá minimální nutná pravidla. Vytváříme tak manévrovací prostor v jehož rámci je možno uplatňovat vlastní představy a přání jednotlivých stavebníků.
Těmito pravidly se pokoušíme dosáhnout především dvojího: Chceme, aby vznikal pokud možno vzhledově dobrý, uživatelsky příjemný a bezpečný uliční prostor. Chceme vymezit svobodu jednotlivých stavebníků při rozhodování o jejich stavbě tak, aby jejich dům budoucí sousedé, kteří začnou stavět později, nemuseli vnímat jako jakoukoliv předem nastolenou křivdu, nebo omezení, které se sousedstvím nutně nesouvisí.
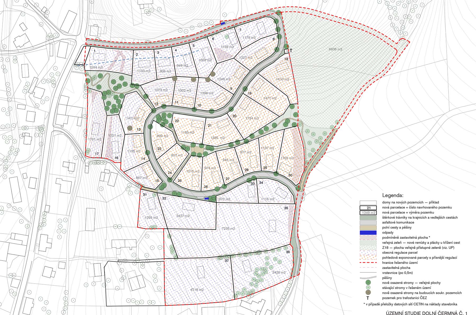
Architektonicko — urbanistické řešení
Hlavní obslužná komunikace opisuje morfologii terénu a využívá napojení starou úvozovou cestou na hlavní komunikaci. Výšku nabírá přirozeně serpentinou. Vyhýbáme se přímému vedení cesty proti vrstevnicím. Další stávající úvozové cesty zůstávají zachovány jako doplňkové.
Hustší zástavbu situujeme do pohledově uzavřených údolíček blíže hlavním cestám. Exponovaná místa zastavujeme tak, aby nevznikal dojem pásové nebo kobercové zástavby.
Shluky vzrostlých stromů rytmizují krajinu, vytvářejí horizonty nebo doplňují zástavbu. Domy vyrůstají přirozeně ze skupin stromů jako ve staré zástavbě.