přístavba ZŠ Hradební v Broumově


zákres do fotografie — pohled z náměstí



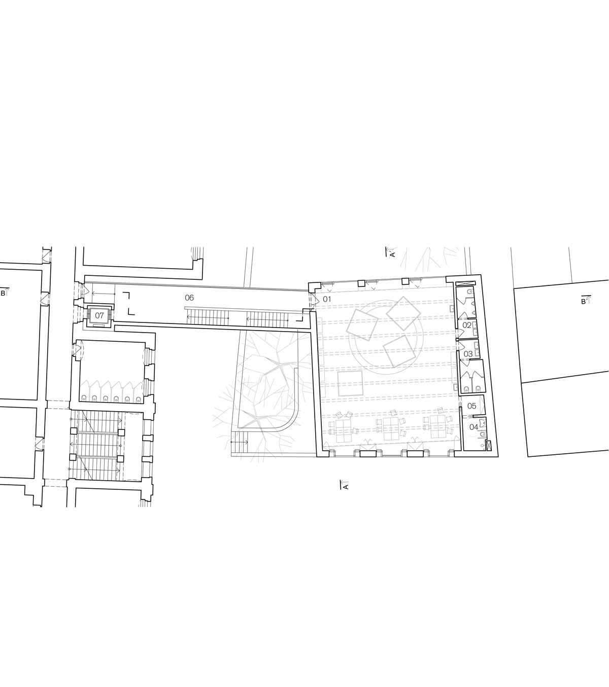
půdorysy

řez a pohled z náměstí

interier haly šaten
společně s Union.arch
architektonické řešení:
Jakub Hlaváč (Union.arch), Jan Světlík, Vojtěch Šedý, Filip Šefl
koncept studie:
07/ 2020
klient:
Město Broumov
motto
jeden noblesní široký portál nového hlavního vstupu školy
dvě velkorysé vnitřní haly - šatny a družiny
tři velká okna do náměstí z družiny - nízké parapety - niky s výhledem, v nichž se dá sedět
propojení se stávající školou v obou patrech
účelnost a dobré užitné vlastnosti stavby, historicky kontextuální tektonika
Největší výzvou projektu bylo navrhnout stavbu, která se stane partnerem v tektonickém dialogu školy, kostela sv. Petra a Pavla a měšťanských domů a která převezme funkci nového hlavního vstupu do základní školy, a to vše na jednom z nejdůležitějších míst v centru Broumova, na Kostelním náměstí. Má to tedy být stavba, která je kontextuální, krásná, solidní. Do toho všeho zásadně vstupuje požadavek na dodržení investičního limitu 20 milionů korun. Po prohlídce současné stavby na parcele se domníváme, že vzhledem k provozním požadavkům školy by rekonstrukce dobrým řešením nebyla.
Od začátku bylo jasné, že bude potřeba najít stavebně, konstrukčně, typologicky i prostorově nejjednodušší a nejlevnější možné řešení. Naše práce se stala hledáním únosné hrany toho, co bez zásadní újmy odpovídá provozním požadavkům a zároveň se dá vměstnat do jednoduchého půdorysného a konstrukčního schematu.
Vnější tvář stavby tvoří především okna, hrubá strukturovaná omítka a kamenný obklad směrem do náměstí. V těchto prvcích jsme se pokusili dát vážně míněnou odpověď na to, jaká stavba může být novou tváří náměstí, vstoupit do dialogu s kostelem a školou a stát se novým vstupním portálem školy. Tato dostavba se má stávající neorenesanční škole stát plnohodnotnou vstupní bránou. Proto je důležité, aby byla srovnatelně materiálově a kompozičně velkorysá. Zároveň z mnoha důvodů není možné ani vhodné komponovat nový vstup jako tektonickou kopii stávající školy.